Дом в стиле BARN 90 кв.м.
ДОМ КРУГЛОГОДИЧНОГО ПРОЖИВАНИЯ С АВТОРСКИМ ДИЗАЙНОМ ОТ НАШЕЙ АРТЕЛИ СО ВСЕМИ ИНЖЕНЕРНЫМИ КОММУНИКАЦИЯМИ
ЗА 5,4 МЛН РУБЛЕЙ.
ЗА 5,4 МЛН РУБЛЕЙ.
ЭТАПЫ
СТРОИТЕЛЬСТВА
Этап 1
Обвязка свайного поля брусом 200х150 из естественной влажности, делее сборка идеально ровной поверхности из 174 СИП панели. СИП панель обеспечит высокую энергоэффективность пола, идеальную поверхность для будущий стяжки и скорость монтажа.
Этап 2
Сборка силового каркаса и стропильной системы из сухой строганной доски 145х45. Боковой фасад и кровля выполнены из профлиста ст 15 или нс 35, а фронтоны из фиброцементной доски Дековер что обеспечивает долговечность и абсолютную негорючесть фасада. Установка ПВХ окон 70 профиль от компании Милки.
Этап 3
Утепление стен единой минеральной плитой 100 и 50 мм, как на Финских прифабах. Установка гипсокартона КНАУФ и декоративных элементов из дерева. Отопление водяной теплый пол, полусухая стяжка , скрытый монтаж электросети с щитовой. Разводка воды через коллектор шитым полиэтиленом.
Этап 4
Чистовая отделка в стиле ЛОФТ. Декоративная штукатурка "Арт бетон", укрытие маслом деревянных элементов, керамогранит в мокрых зонах, установка межкомнатных дверей.
Этап 0
Фундамент и проект в стоимость не входят.
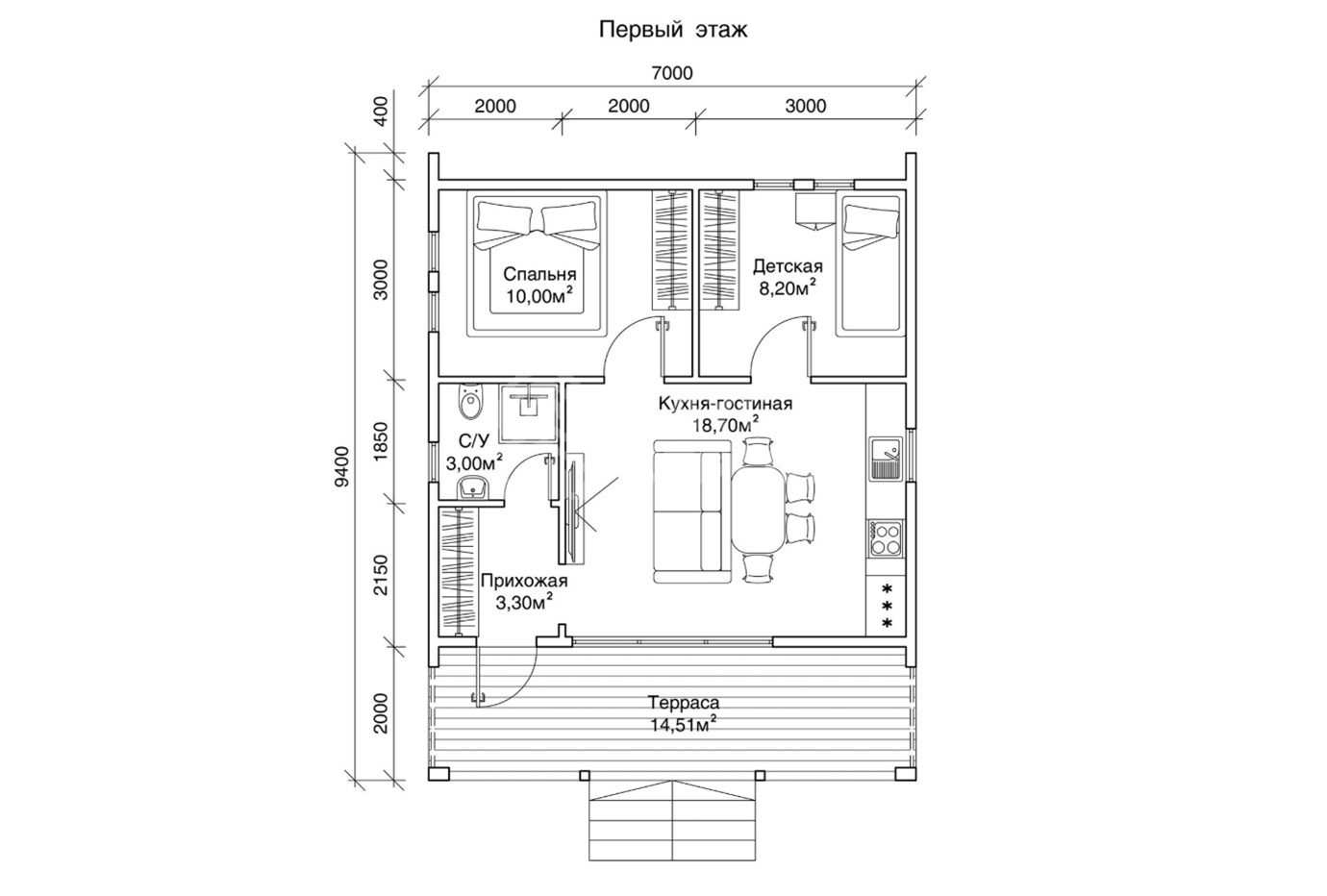
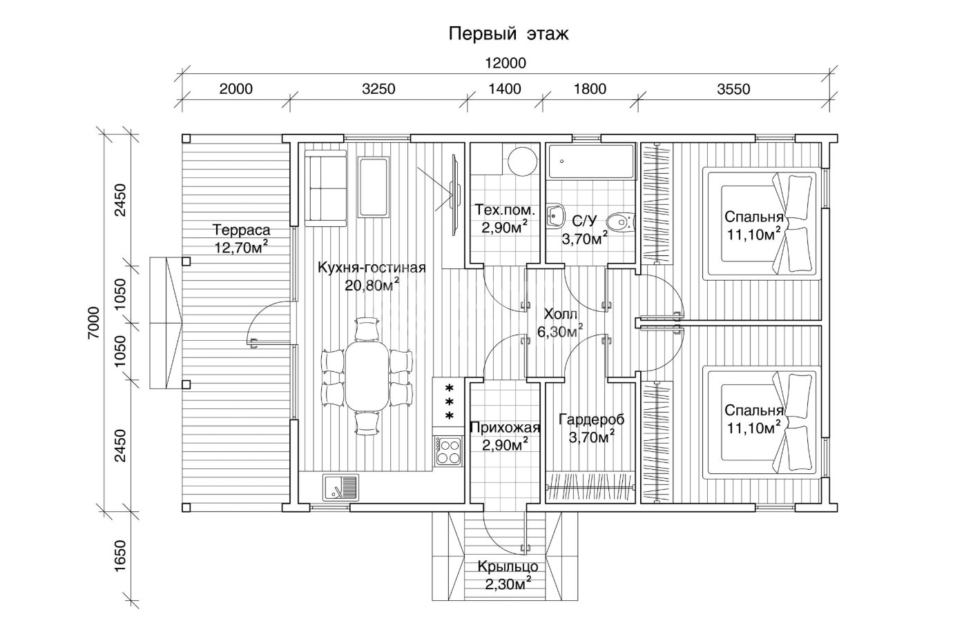
ПЛАНИРОВКА
Возможны различные планировки дома в рамках прямоугольной концепции дома и двух скатной крыши.
КОНТАКТЫ
Address
Санкт-Петербург, Чайковского 51
Phone
+7 931 968 88 00
Email
hello@company.com